通过电液联动装置往复推位来控制阀门的开启和关闭,如配置传感器或数字显示装置,可进行远距离,高空的危险地区集中或程序控制,广泛应用于冶金、电力、煤炭、矿山、水利等行业,是一种应用性强的新型更新替代产品。

产品概述
该产品通过电液联动装置往复推位来控制阀门的开启和关闭,如配置传感器或数字显示装置,可进行远距离,高空的危险地区集中或程序控制,广泛应用于冶金、电力、煤炭、矿山、水利等行业,是一种应用性强的新型更新替代产品。
特点
◎机、电、液、仪一体化,实现现场控制,集中监控或自动控制。
◎无级调力,运行平稳,冲击力小,适用于较高压力场合。
◎节能,液压传动效率高达80%
◎阀门整体结构紧凑,体积小,无需液压泵站。
◎可控制任意阀位并可锁定。
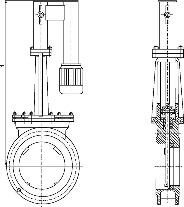
| 公称通径Nominal through diameter | 50 | 65 | 80 | 100 | 125 | 150 | 200 |
| 高度Height | 335 | 363 | 395 | 465 | 530 | 630 | 750 |
| 公称通径Nominal through diameter | 250 | 300 | 350 | 400 | 450 | 500 | 600 |
| 高度Height | 900 | 1125 | 1460 | 1450 | 1600 | 1900 | 2300 |
联系我们
打开微信扫一扫